PROHARDVER! témák
Mobilarena témák
IT café témák
GAMEPOD témák
-
Fototrend

Új hozzászólás Aktív témák
-
HoryThePooh
aktív tag
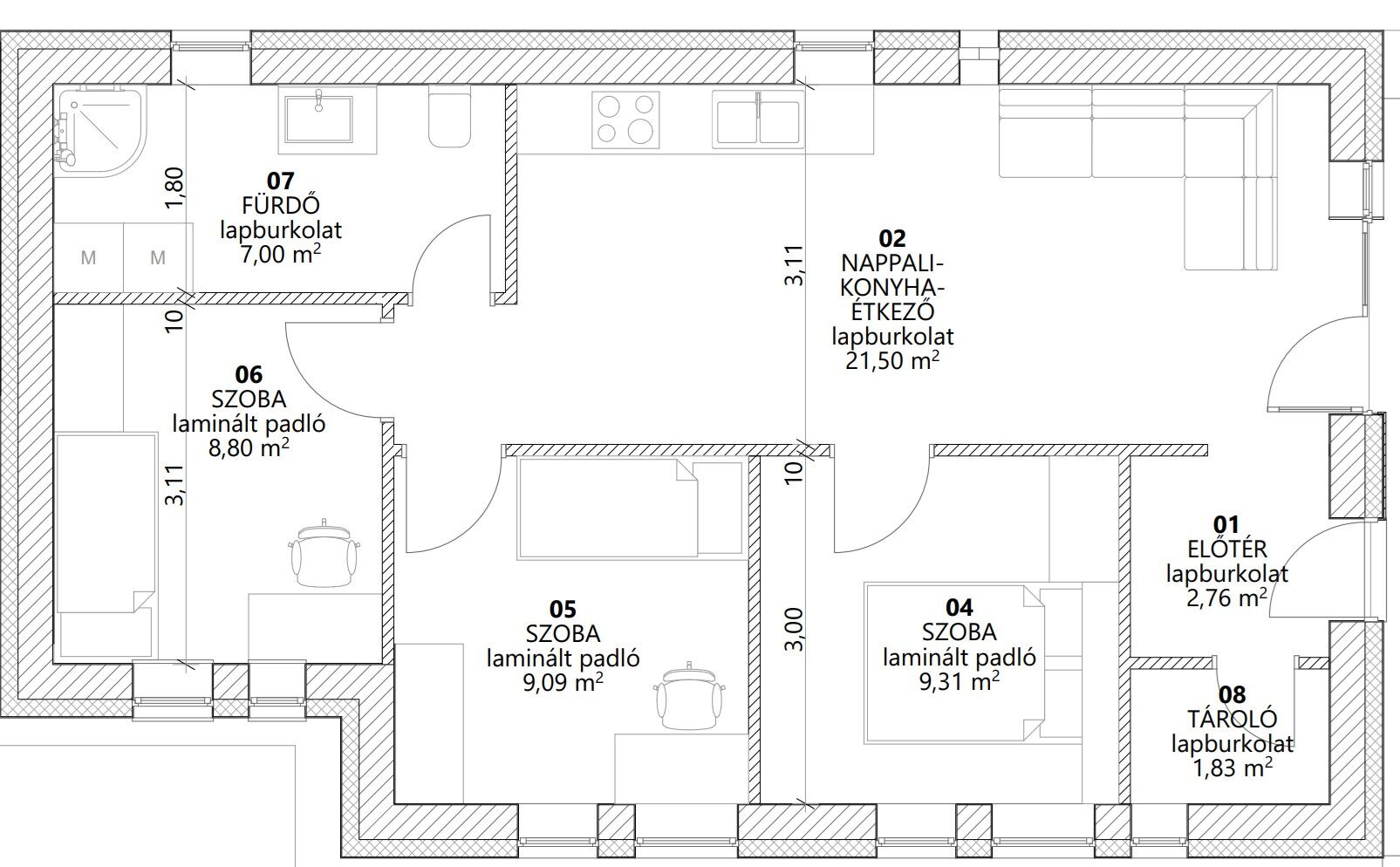
Sziasztok!
Az alábbi kialakítású, nagyjából 60m2-es, új építésű, 15cm-es grafitos szigetelésű, infra fűtőfóliás padlófűtésű házba szeretnénk légkondiciónálót beszereltetni.
[kép]
Cél, hűtés és kiegészítő fűtés.
Kérek szépen tanácsokat, hova és mekkora teljesítményűt szereltessünk ha
1 légkondival
vagy
2 légkondival
oldanánk meg ezt.
Új hozzászólás Aktív témák
Aktív témák
Új fizetett hirdetések
- JURA Impressa F50 automata kávéfőző cappuccino fejjel eladó
- Eladó WHIRLPOOL PACW29HP Hűtő-Fűtő Mobilklíma Fekete
- NA550/00 Philips 5000 Series Dupla kosaras Airfryer
- !!AKCIÓ!! Vadonatúj, bontatlan iScooter iX6 elektromos roller, 1 év gari 45 km/h, 1000 watt
- Saeco Talea Giro Automata kávégép 6 hónap Garancia Beszámítás Házhozszállítás
Üzleti előfizetők hirdetései
- HIBÁTLAN iPhone 13 128GB Red -1 ÉV GARANCIA - Kártyafüggetlen, MS3760
- ÁRGARANCIA!Épített KomPhone Ryzen 5 7500F 32/64GB RAM RTX 5060 Ti 8GB GAMER PC termékbeszámítással
- LG 27UL550-W - 27" IPS / 3840x2160 4K / 60Hz 5ms / HDR10 / AMD FreeSync
- Apple iPhone 14 Pro Max / Kártyafüggetlen / 256GB / 12Hó Garancia / 87% akku
- Azonnali készpénzes AMD CPU AMD VGA számítógép felvásárlás személyesen / postával korrekt áron
Állásajánlatok
Cég: PCMENTOR SZERVIZ KFT.
Város: Budapest
Cég: BroadBit Hungary Kft.
Város: Budakeszi


